Detail.

頂上 動く彫刻 、地上約37m、

直径5.6m、重さ約2トン。

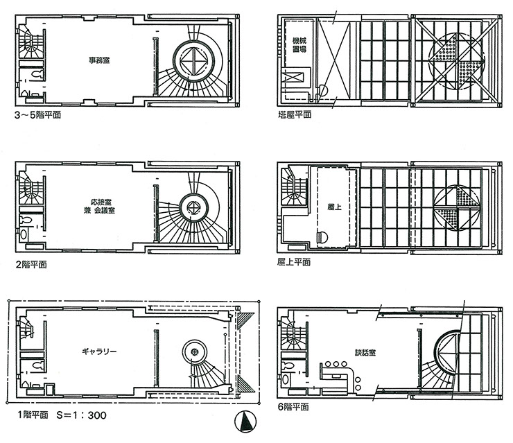
地上0m付近

( 1f エントランスホール・事務室 )

 

円形池(循環式・御影石)

凹面鏡(直径1.5m・ステンレス製)

オブジェ(屋内・直径50cm・カーボンファイバー製)

壁(コンクリート)

床(御影石)

手すり(1f~6f ・ステンレス製・一本物)

外部鉄骨(屋外・鉄製)

地上 約3m付近

( 2f 応接室・会議室 )

 

オブジェ(屋内・直径90cm・カーボンファイバー製)

壁(コンクリート)

床(塩ビ)

外部鉄骨(屋外・鉄製)

 

 

写真を

見る

 

 

写真を

見る

地上6.5m付近

( 3f 事務室 )

 

オブジェ(屋内・直径1.375m・カーボンファイバー製)

壁(コンクリート)

床(塩ビ)

外部鉄骨(屋外・鉄製)

地上 約9.5m付近

( 4f 事務室 )

 

オブジェ(屋内・直径1.95m・カーボンファイバー製)

壁(コンクリート)

床(塩ビ)

外部鉄骨(屋外・鉄製)

 

 

写真を

見る

 

 

写真を

見る

地上16m付近

( 5f 事務室 ・ 6f 談話室 )

 

オブジェ(屋内・直径2.65m・カーボンファイバー製)

壁(コンクリート)

床(塩ビ)

外部鉄骨(屋外・鉄製)

地上 約19m付近

( 6f 談話室 ・ 屋上 )

 

オブジェ(屋外・直径3.35m・ステンレス製)

外部鉄骨(屋外・鉄製)

壁(コンクリート)

床(コンクリート)

 

 

写真を

見る

 

 

写真を

見る

地上22m付近

( 屋上 )

 

オブジェ(屋外・直径4.1m・ステンレス製)

外部鉄骨(屋外・鉄製)

壁(コンクリート)

床(コンクリート)

地上 約37m付近

( 頂上 )

 

オブジェ(屋外・直径5.6m・ステンレス製・約2トン)

外部鉄骨(屋外・鉄製)

 

 

写真を

見る

 

 

写真を

見る

『新建築』(新建築社)1992.6号

設計図

総合設計・デザイン:新宮晋

建築設計監理:尾形建築事務所

構造設計者:山田建築構造事務所

施工(建築):松村組

施工(オブジェ):エー・アイ・エム+新宮アトリエ

建築主:稲田紀男(ブレーンセンター代表取締役)

Copyright BRAINCENTER Inc. All Rights Reserved.

Supported by 風の万華鏡を次世代に残す会

SHARE